Максимальная глубина размещения под землей 3 метра. Возможна доукомплектация удлиняющими горловинами, дополнительными инспекционными люками с завинчивающимися крышками.
КАТЕГОРИЧЕСКИ ЗАПРЕЩАЕТСЯ хранение легковоспламеняющихся жидкостей категории I и II (например, бензин, керосин).
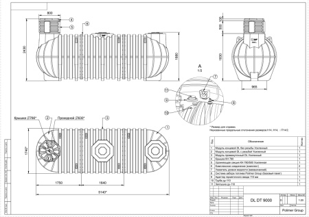
Комплектация
| № | Наименование | Кол-во | Ед. изм. |
| 01. | Модуль концевой DL без резьбы усиленный | 1 | шт |
| 02. | Модуль концевой DL с резьбой усиленный | 1 | шт |
| 03. | Модуль промежуточный DL усиленный | 1 | шт |
| 04. | Крышка КН 780 | 1 | шт |
| 05. | Удлиняющая секция КН 780/500 | 1 | шт |
| 06. | Комплексное соединение (комплект) | 2 | шт |
| 07. | Указатель уровня жидкости (механический) | 1 | шт |
| 08. | Система забора топлива Polimer Group (Базовый пакет) | 1 | шт |
| 09. | Адаптер герметичного ввода 110 мм | 1 | шт |
| 10. | Труба ду-110 | 1 | шт |
| 11. | Заглушка ду-110 | 1 | шт |
Рекомендации по установке и монтажу
Площадка под накопитель должна располагаться на расстоянии не менее 5 метров от дороги и не менее 3 метров от деревьев.
Глубина заложения накопителя зависит от глубины подводящего трубопровода, местных норм глубины промерзания грунта или определяется проектом. Если уровень грунтовых вод расположен выше чем отметка низа накопителя, то необходимо закрепление, которое производится пластмассовым или капроновым канатом к бетонной плите. В общем случае корпус устанавливается на уплотнённый грунт дна котлована.
По технологии установки полимерных емкостей в грунт, засыпка пазух между стенками котлована и стенками емкости производится не вынутым грунтом, а песком без крупных твердых включений либо смесью песка и цемента (в пропорции 5:1), с одновременным постепенным заполнением накопителя водой. Песок укладывается послойно с обязательным трамбованием.
Верхний слой засыпается растительным грунтом.
Работы по загрузке, выгрузке и установке изделия должны производить лица, изучившие настоящий паспорт, располагающие необходимой для этого материально-технической базой и квалификацией.
Для покупки товара выберите понравившийся товар и добавьте его в корзину.
Далее перейдите в Корзину и нажмите на «Оформить заказ» или «Быстрый заказ».
Оформляя «Быстрый заказ», заполните данные ФИО, телефон и e-mail. При необходимости добавьте особые условия в поле «Комментарий к заказу». Отправьте заявку нажав на кнопку «ОТПРАВИТЬ». Вам перезвонит менеджер и уточнит условия заказа.
Для оформления заказа в стандартном режиме («Оформить заказ») заполните форму полностью по последовательным этапам: адрес, способ доставки, оплаты, данные о себе.
Советуем в комментарии к заказу написать информацию об адресе доставки. Нажмите кнопку «Оформить заказ».
Доступны следующие варианта оплаты:
- Оплата банковской картой
- при самовывозе на складе или в офисе в г. Мытищи, г. С.-Петербург. Пожалуйста убедитесь заранее о наличии интересующего Вас товара на складе. - Наличными
- только в офисах в г. Мытищи, г. С.-Петербург. Вы оплачиваете сумму за товар в рублях. Затем получаете товар на складе, либо ожидаете доставку. - Безналичный расчет
- в любом из представленных на сайте городов для юридических и физических лиц доступно выставление счета по электронной почте. - Оплата по QR коду для физических лиц
- по телефону или по электронной почте с покупателем согласовываются все вопросы по списку выбранных товаров, по доставке, либо самовывозу. На указанную покупателем электронную почту сотрудник компании присылает счет с QR кодом. Покупатель оплачивает товар в своем банке используя присланный QR код. Подробная инструкция по ссылке.
Доступны следующие варианты доставки:
- Самовывоз со склада.
После получения оплаты за товар сотрудник компании свяжется с Вами и сообщит информацию о дате и адресе склада отгрузки. Пожалуйста заранее уточните габариты товара, чтобы Вы смогли разместить купленный товар в Вашем автомобиле. - Доставка транспортом компании (Москва и область).
После получения оплаты за товар сотрудник компании свяжется с Вами и сообщит информацию о дате доставки. Пожалуйста сообщите дополнительный телефон для связи на случай, если Ваш телефон будет не доступен. - Доставка по России транспортными компаниями.
Для предварительной оценки стоимости доставки в регионы Вы можете воспользоваться калькулятором доставки.
Либо позвоните нам и стоимость доставки по России для Вас рассчитает сотрудник нашей компании. Бесплатный звонок по России 8 (800) 500-78-35. Также Вы можете выбрать транспортную компанию, которой доверяете, а мы рассчитаем стоимость «от двери до двери» или «от склада до склада».
